Ref # 2484246

Prime Industrial Property with Office & Workshop Space For Sale in Driehoek, Germiston

Property Type
Industrial
Bathrooms
3
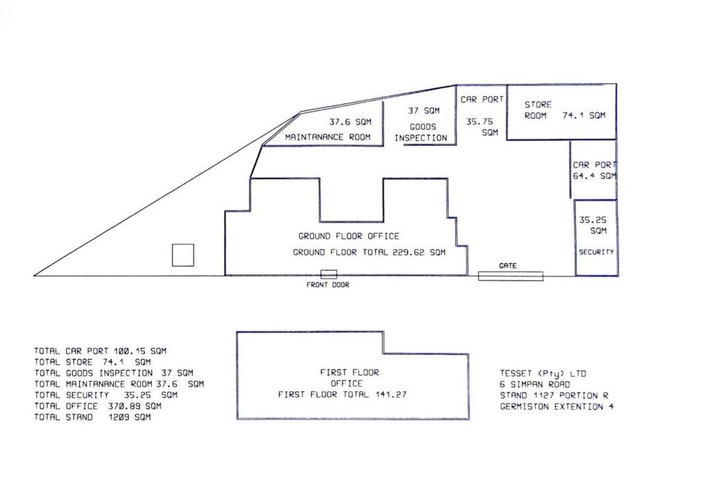
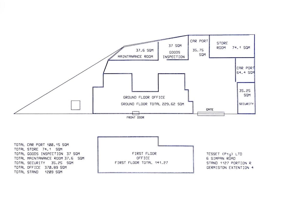
Land Size
1,209m²
Rates & Taxes
±R12,000

This well located and versatile industrial property, ideally located in the heart of Driehoek, Germiston, presents an exceptional opportunity for both owner occupiers and investors. Positioned on a generous ±1,200m2 stand and zoned Industrial 1, the property offers a flexible layout suited to a wide range of business operations.

The property boasts a spacious ±370m2 double-storey office component, featuring multiple private offices (approximately 10), a safe room, bathrooms, an equipped kitchen, and ample storage space, perfect for administrative and operational efficiency.

Complementing the office space is approximately ±285m2 of additional improvements, including a workshop, external storerooms, and covered carports.

The large yard area provides excellent accessibility and ample space for parking, vehicle storage, or logistics operations, comfortably accommodating multiple vehicles or light trucks.

Strategically positioned on a main road, the property benefits from good exposure and excellent connectivity, with quick access to major routes including the N3, N17, M2 highways, and Refinery Road. The surrounding area is a well-established industrial node, home to numerous factories and commercial enterprises.

This property offers strong potential for a variety of industrial or commercial uses, as well as solid rental income prospects for investors.

Key Features:

  • ±1,200m2 stand | Industrial 1 zoning
  • ±370m2 double-storey office component
  • ±285m2 workshop, storerooms & carports
  • Secure premises
  • Large yard with ample parking and vehicle access
  • Excellent main road exposure
  • Easy access to major highways and transport routes

Price: Inclusive of VAT

This is a rare opportunity to secure a prime industrial property in a high-demand area.

Contact us today to arrange a viewing.

Mildred Noe photo
Mildred Noe
074 840 1884
.\...
Make an enquiry
Interested in this property? Please fill in your details below, and we will contact you as soon as possible.
By clicking on "submit" you agree to our privacy policy.